Používame cookies

Súbory cookie a ďalšie technológie sledovania používame na zlepšenie vášho zážitku z prehliadania našich webových stránok, na to, aby sme vám zobrazovali prispôsobený obsah a cielené reklamy, na analýzu návštevnosti našich webových stránok a na pochopenie toho, odkiaľ naši návštevníci prichádzajú. Viac info

 

Pozemky pre výstavbu 5 rodinných domov, Rozhanoce, centrum obce

Interné ID: JO340
Ulica: SNP
Obec: Rozhanovce
Okres: Košice - okolie
Kraj: Košický kraj
Druh: Pozemky
Typ: Predaj
Celková plocha: 5533 m2
Typ pozemku: Pozemky - bývanie
130 €/m2

Popis nehnuteľnosti

Ponúkame vám na predaj stavebný pozemok v obci ROZHANOVCE so vstupom z hlavnej cesty.
Pozemok je určený pre výstavbu 5 samostatne rodinných domov, alebo dvojdomov.

POZEMKY: sú rovinatý, až mierne svahovité so sklonom na západnú stranu s obdĺžnikovým tvarom.

VÝMERY POZEMKOV podľa geometrického pláno schválený územný plán:
- Prístupová cesta s chodníkmi a obratiskom 1560 m2
- Pozemok 1: 790 m2 + 23 m2
- Pozemok 2: 820 m2
- Pozemok 3: 840 m2
- Pozemok 4: 793 m2
- Pozemok 5: 700 m2

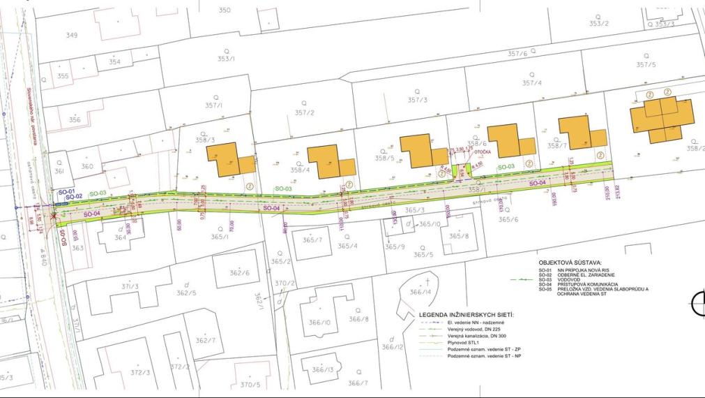
Inžinierske siete:
- elektrina:NN prípojka nová RIS z hlavnej cesty, predjednané pre ohlásenie na stavebný úrad
- voda: formou združenej prípojky z hlavnej cesty, predjednané pre ohlásenie na stavebnom úrade
- odpad: riešené cez žumpu min. 24 m3 pre každý dom, pretože čistička odpadových vôd má obmedzenú kapacitu

Regulatívy pre domy:
Pre výstavbu rodinných domov v predmetnej lokalite boli prijaté regulatívy v zmysle schváleného ÚP obce - koeficient zastavanosti 0,4, stavebná čiara 6,0m, max. podlažnosť 2NP - ostatné podmienky v zmysle stavebného zákona.

Navrhované rodinné domy sú nepodpivničené, dvojpodlažné, s plochou strechou, prípadne s možnosťou kombinácie plochej a šikmej strechy. Pri každom RD je navrhovaná dvojgaráž, osadená min. 1,0m od hranice susedného pozemku.

Prístupová cesta je pripravená pre stavebné pre podanie na stavebný úrad:
Prístupová komunikácia rieši dopravné napojenie IBV 7RD Rozhanovce na št. cestu III/3325 - ul. SNP v obci. Uličný priestor pre komunikáciu je široký 7,00 - 8,98m. Komunikácia je slepá, obojsmerná, so šírkou vozovky 5,5m v dĺžke 33,6m v priestore napojenia na št. cestu III/3325 a šírke 5,0m v dĺžke 173,82m. Na konci komunikácie je obratisko v tvare písmena T. Celková dĺžka komunikácie je 213,82m, povrch komunikácie je asfaltobetón.

Občianska a technická vybavenosť v obci: Potraviny, drogéria, autoservis, lekáreň, ambulancie pre deti a dorast, dospelých, zubár, telocvičňa, futbalové ihrisko, knižnica, materská a základná škola. Viac informácií nájdete na webe obce Rozhanovce.

Dostupnosť do Košíc je 10 min autom.

CENA: 130 Eur / m2 za celý pozemok

Pre viac informácií nás neváhajte kontaktovať:

Ján Ovák, RSc.
vedúci kancelárie
mobil: 0917 838 032
email: ovak@inforeal.sk

INFOREAL - realitná spoločnosť
Vodná 3
040 01 Košice
www.INFOREAL.sk

22 rokov skúseností
Viac ako 700 predajov nehnuteľností
Viac ako 900 spokojných zákazníkov

Vlastnosti

Status:
aktívne
Vlastníctvo:
osobné
Plocha pozemku:
5533 m2
Kanalizácia:
Verejná kanalizácia
Status:
aktívne
Vlastníctvo:
osobné
Plocha pozemku:
5533 m2
Kanalizácia:
Verejná kanalizácia

Pozrieť na mape

Maklér

Ján Ovák, RSc.

Ján Ovák, RSc.

vedúci kancelárie

  • Slovensky
  • Česky
  • English
  • Deutsch

Radi Vám poradíme

Podobné nehnuteľnosti